Grashaus Projects
Brand Narrative

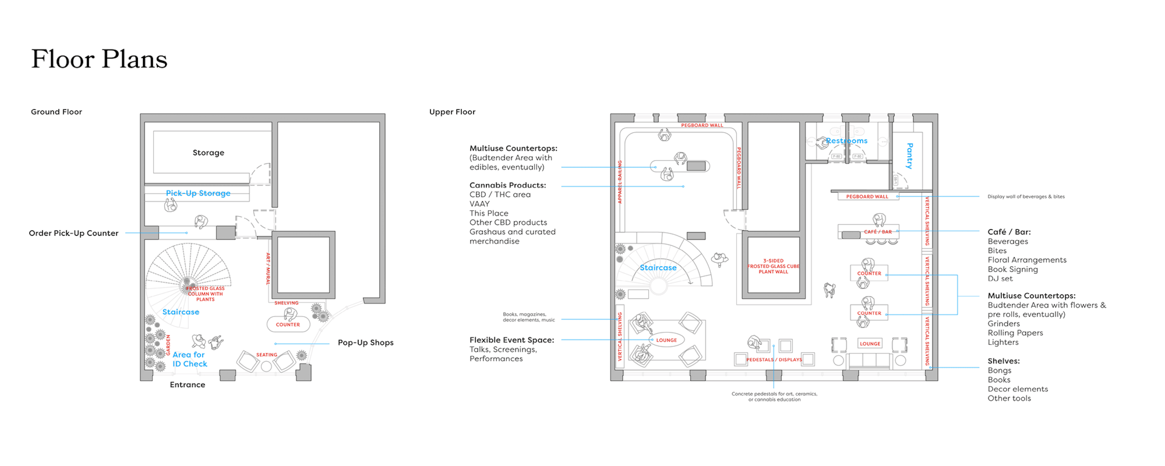
Grashaus Projects was conceived by a group of cannabis experts in Berlin. As Germany progresses towards legalization, the company aims to open dispensaries nationwide in the future. Meanwhile, as part of Swiss pilot tests, Grashaus Projects has opened the first-ever dispensary in Europe selling high-quality THC products in Basel-Landschaft.
Grashaus Projects brought on YummyColours to conceptualize and design the brand’s experience. We crafted a mission to challenge current social stigmas around the plant by providing education, access, and a community space. We envision a world where the dispensary is an integral part of every community—a judgment-free place defined by a profound appreciation for the plant and its healing properties. Drawing on our US knowledge of the cannabis market, we developed the brand strategy, visual identity, tone of voice with messaging guidelines, retail space design, merchandise, and a packaging system.



















Connie Lui, Diego Marini
Jen Holsman
Kassia Graham
Claudia Mandelli
Mia Le



